Spojme se ihned:
Prodej zajímavé novostavby ve Svinařích
Typ objektu: Domy
Typ inzerátu: Prodej
Id inzerátu: 12159
12159
- Stav objektu: Novostavba
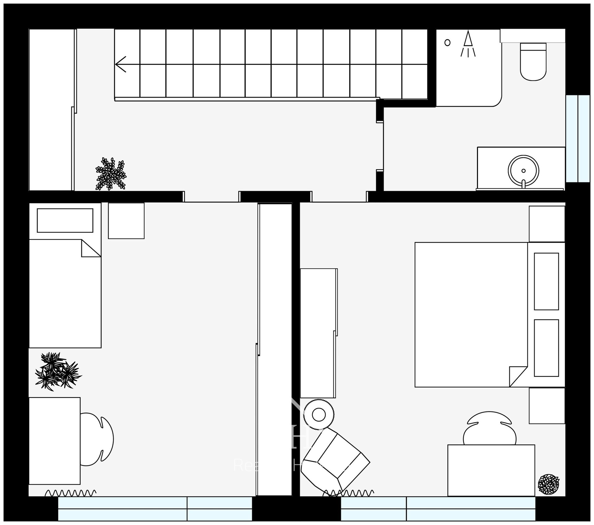
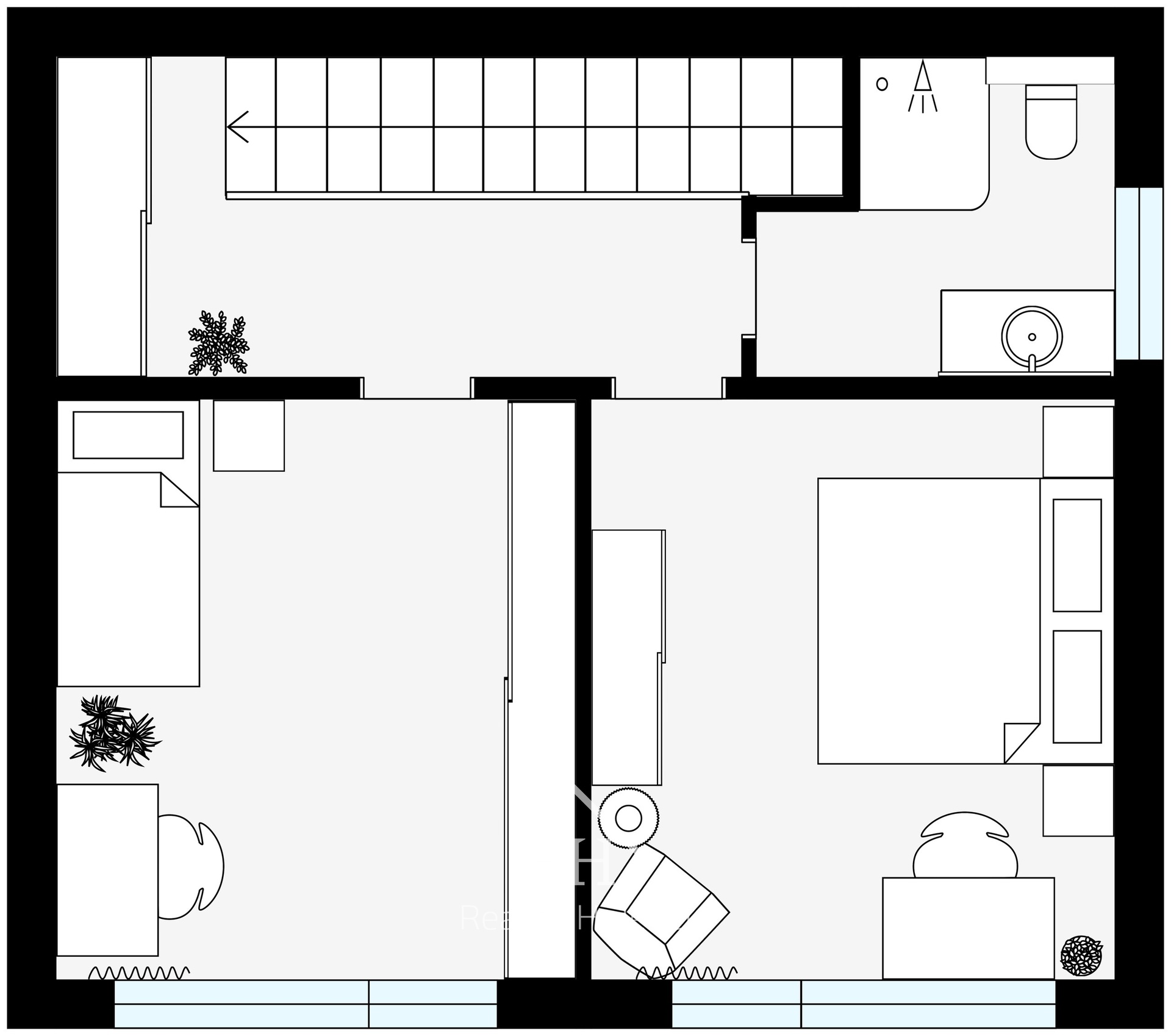
- Počet pokojů: 4 pokoje
- Typ bytu/domu: Rodinný
- Obec: Svinaře, 26727
- Lokalita: Větrná 165
- Stavba: Dřevěná
- Užitná plocha: 156 m²
- Plocha pozemku: 623 m²
- Energetický štítek: D - Méně úsporná
- Voda: Dálkový vodovod
11 987 000,00 Kč
Sdílejte toto na sociálních sítích
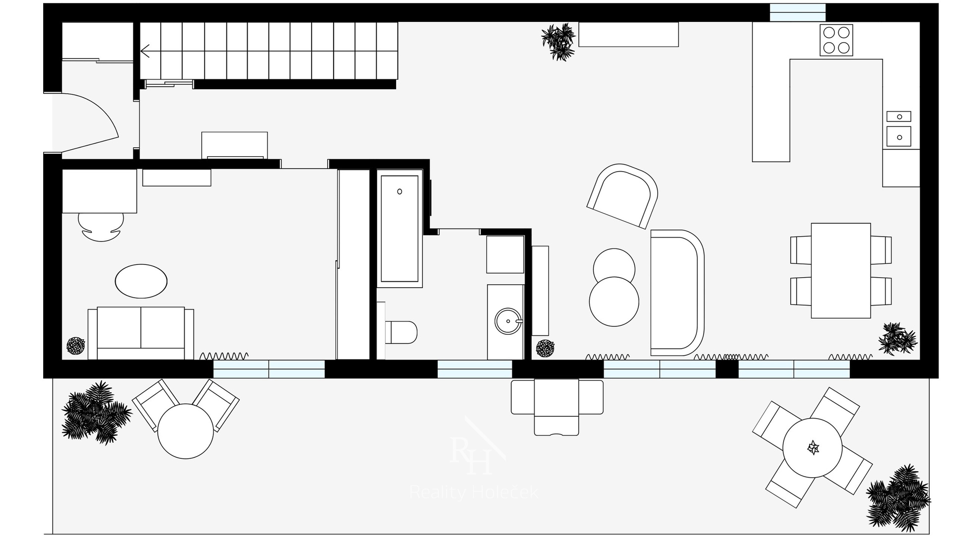
Moderní dřevostavba rodinného domu s promyšleným designem.
Architektonicky zajímavé řešení spojuje nadčasový vzhled s důmyslnou dispozicí. Dům nabízí více než 156 m² podlahové plochy, takže pohodlně uspokojí potřeby větší rodiny nebo kohokoli, kdo má rád prostor. Vzdušnost, světlo a otevřený hlavní obytný prostor propojený se zahradou vytvářejí atmosféru klidného a nadčasového domova – každý detail tu má své místo.
Otevřený obývací prostor s terasou.
Středem domu je prostorný obývací pokoj s kuchyní, odkud je přímý vstup na velkou terasu a do zahrady. Velká okna zajišťují dostatek denního světla a propojují interiér s exteriérem. Součástí přízemí je také ložnice s vlastním východem do zahrady. Ranní rosa na zahradě tak čeká právě na vaše bosé nohy v trávě.
Klidné soukromí v patře.
V patře se nachází dva pokoje s panoramatickými okny, výhled z pokojů je opravdu dechberoucí. Každý pokoj má dostatek prostoru a soukromí. Příjemným bonusem je klimatizace v obou pokojích, která zajistí komfort v letních měsících.
Dvě koupelny, dvojnásobné pohodlí.
V přízemí je koupelna s vanou, kterou oceníte pro relaxaci po náročném dni, zatímco v patře najdete druhou koupelnu se sprchovým koutem. Praktické řešení i pro větší rodinu nebo návštěvy – každý má svůj prostor, bez čekání a kompromisů.
Technologie budoucnosti.
Dům je připraven na moderní životní styl – ve celém domě je elektrické podlahové topení, v horních pokojích se o větší komfort postará v zimě i létě klimatizace. Na střeše garáže jsou solární panely a energie se ukládá do bateriového úložiště. V garáži se nachází i nabíječka pro elektromobil. To vše pomáhá šetřit nejen náklady, ale i životní prostředí. Dům má aktuálně energetický štítek třídy – D.
Pozemek a okolí.
K domu náleží pozemek o výměře 623 m², který poskytuje dostatek prostoru pro zahradu, posezení i dětské hry. Lokalita Halouny u Svinař leží na rozhraní CHKO Český kras a Brdských lesů – ideální místo pro milovníky přírody, turistiky i výletů. Český kras vám nabídne nespočet cílů pro vaše aktivní víkendy, v Brdských lesích zase najdete klid i houby.
Skvělá dostupnost do Prahy.
Přestože se dům nachází uprostřed zeleně, Praha je na dosah – autem jste v hlavním městě zhruba za 30 minut, vlak ze sousedních Řevnic jede až na Hlavní nádraží.
Propojení klidu přírody a pohodlného dojíždění dělá z této lokality ideální místo pro moderní rodinné bydlení.









































